ホーム | 物件探しを依頼する | ログイン | 未公開物件から探す | お気に入りに登録した物件0
| 所在地 | 東京都江戸川区一之江2 |
|---|---|
| 交通 |
都営新宿線 一之江駅 徒歩15分 |
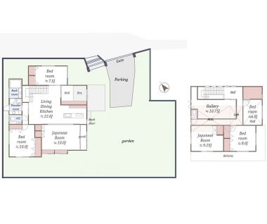
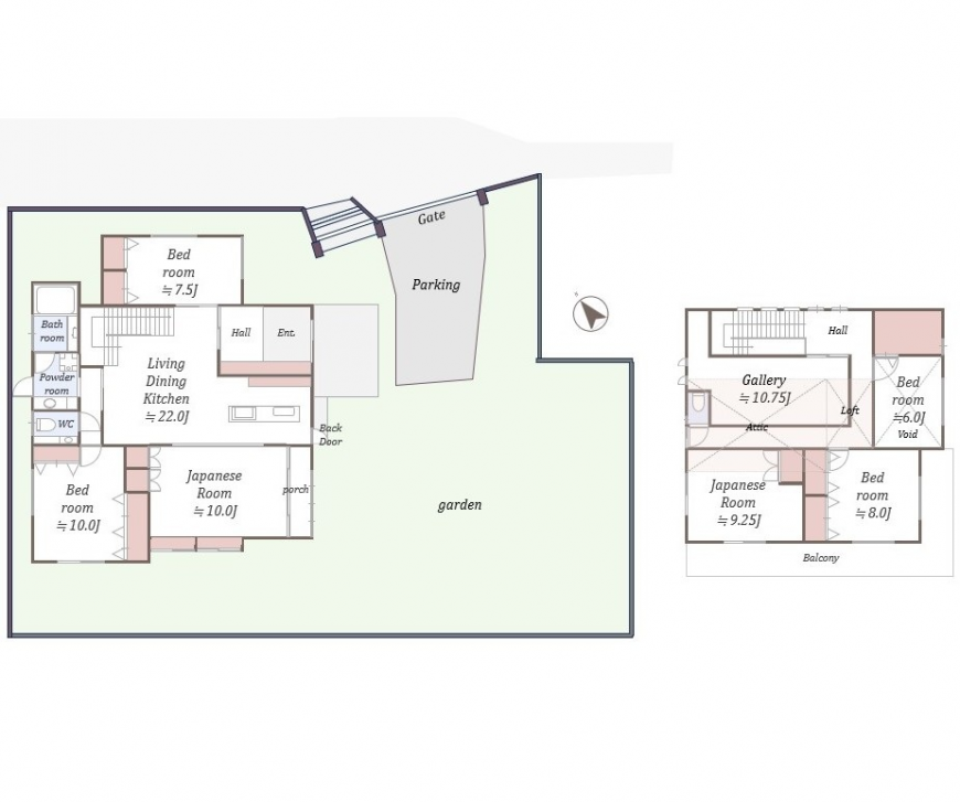
| 間取り/建物面積 | 6LDK / 209.50m²(公簿) |
| 価格 | 19,800万円 |
| 構造/階/築年 | 木造 / 2階建 / 2007年8月 |
| 土地面積/土地権利 | 407.90m²(実測) / 所有権 |
| 建蔽率/容積率 | 50% / 100% |
| 都市計画/用途地域 | 市街化区域 / 第一種中高層住居 |
| 防火指定/高度地区 | 準防火地域 / 第2種高度地区 |
| 地目/地勢 | 宅地/- - 私道負担:9.55m² |
| 接道/セットバック | 北東側4.00m私道に21.00m接道 / - - |
| コメント | 細部のこだわりを感じる仕様・意匠 |
| 現況・引渡 | 空家 即時 |
| 情報更新日 | 2026年04月10日 |
| 情報有効期限 | 2026年04月24日 |
| 取引態様 | 仲介 |
| 間取内訳/間取備考 | / ギャラリールーム10.75帖 |
|---|---|
| 設備条件/設備備考 | 日当たり良好 / 閑静な住宅街 / システムキッチン / 対面キッチン / 浄水器 / 食器洗浄乾燥機 / 追い炊き / トイレ2ケ所 / バス1坪以上 / 洗浄便座 / エアコン / 床暖房 / 24時間換気システム / 床下収納 / ウォークインクローゼット / TVドアホン付き / 駐車場有り / グルニエ / 庭 / 上水道(公営) / 下水道(公共下水) / ガス(都市ガス) / |
| 学校区 | 区立一之江小学校 区立松江第五中学校 |
| 江戸川区一之江二丁目戸建お問い合わせ先 | |
|---|---|
| 会社名 | 株式会社財成リアルティ |
| 住所 | 東京都江戸川区一之江8-13-1 |
| TEL | 03-5661-3030 |
| 物件番号 | 0043-00024129 |